- Accueil
- Vente
- Var
- Le lavandou
- SUPERBE TERRAIN FACE À LA MER À AIGUEBELLE
Référence : VTE40008138
Calculette
Partager
SUPERBE TERRAIN FACE À LA MER À AIGUEBELLE
Partager l'offre
Description de l'offre
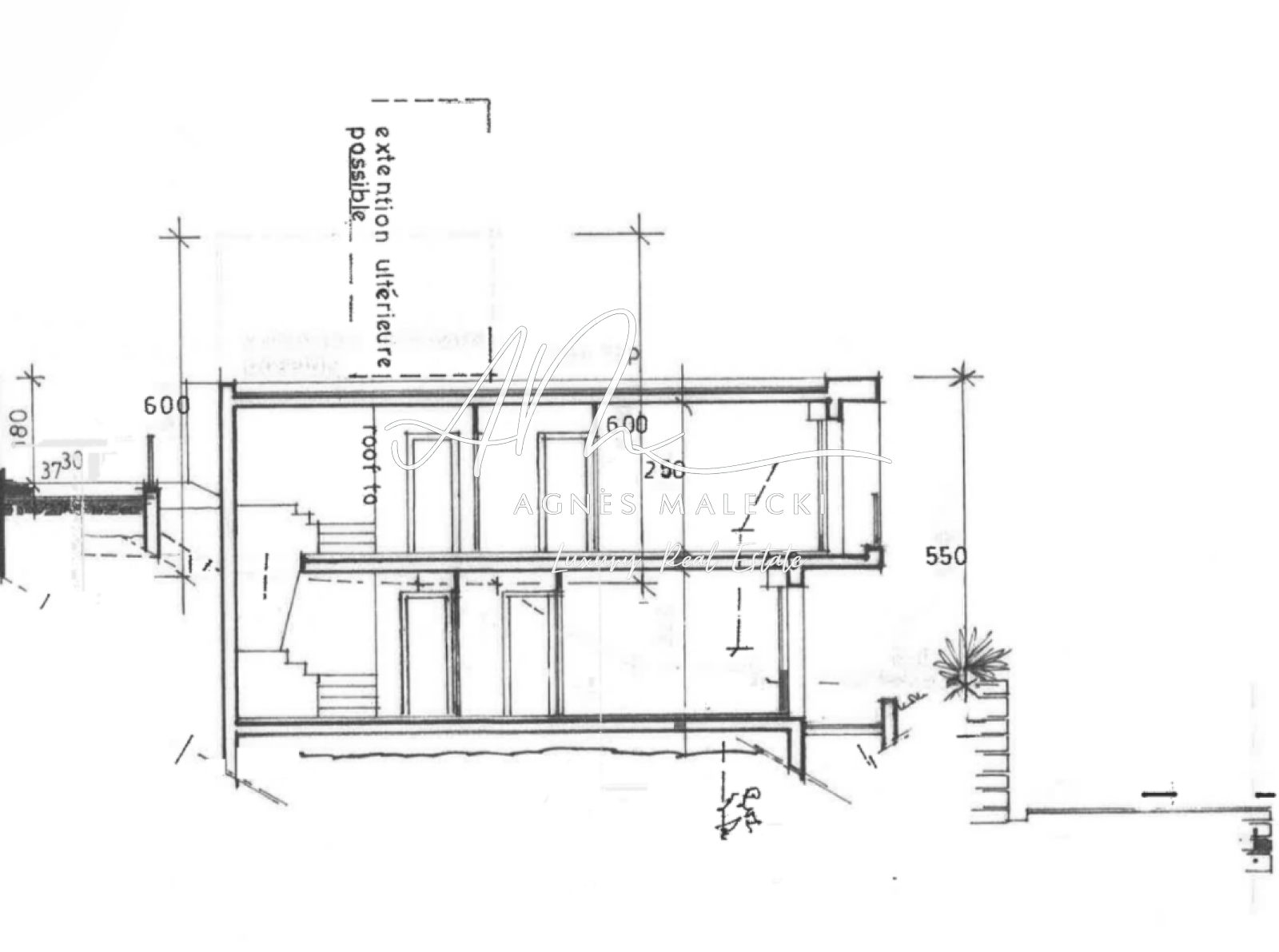
Vous en rêvez, vous pouvez la créer ! À Aiguebelle, superbe terrain plat de 660 m², offrant une vue spectaculaire sur la mer et les îles. Exposé Sud/Sud-Ouest, ce bien rare sur la côte bénéficie d’un environnement calme et préservé. Avec une emprise au sol de 30 %, réalisez une construction jusqu’à 198 m², idéale pour une villa d’architecte pensée sur mesure. D'ailleurs un projet est déjà prévu et n'attend que vous pour commencer ! Le secteur est particulièrement prisé pour sa proximité immédiate avec la mer et son cadre naturel privilégié. Un projet de villa d’architecte est déjà prêt, vous offrant une base solide pour créer la résidence de vos rêves. Besoin d’en savoir plus ? Contactez moi au +33(0)7 50 63 85 16 ou à agnesmalecki02@orange.fr. Georgelin MALECKI, votre expert local en immobilier - RSAC 981 018 971 You dream it, you can create it ! In Aiguebelle, a stunning 660 m² flat plot offering a spectacular view of the sea and the islands. Facing South/Southwest, this rare coastal property enjoys a peaceful and preserved environment. With a 30% building footprint, you can develop up to 198 m², perfect for a custom-designed architect’s villa. In fact, a project is already planned and just waiting for you to bring it to life! This highly sought-after area is known for its close proximity to the sea and its exceptional natural surroundings. An architect’s villa project is already available, providing a solid foundation to create your dream residence. Want to know more ? Contact me at +33(0)7 50 63 85 16 or agnesmalecki02@orange.fr. Georgelin MALECKI, your local real estate expert - RSAC 981 018 971
Descriptif du bien
- Code postal : 83980
- surface terrain : 660 m²
- Terrain constructible : OUI
- Terrain Viabilisé : OUI
- Copropriété : NON
- Prix de vente : 690 000 €
- Les honoraires d'agence seront intégralement à la charge du vendeur
La ville de Le Lavandou (83980)
Nous Contacter
Afficher le téléphone 04 94 94 76 34Les informations recueillies sur ce formulaire sont enregistrées dans un fichier informatisé par La Boite Immo agissant comme Sous-traitant du traitement pour la gestion de la clientèle/prospects de l'Agence / du Réseau qui reste Responsable du Traitement de vos Données personnelles.
La base légale du traitement repose sur l'intérêt légitime de l'Agence / du Réseau.
Elles sont conservées jusqu'à demande de suppression et sont destinées à l'Agence / au Réseau.
Conformément à la loi « informatique et libertés », vous disposez des droits d’accès, de rectification, d’effacement, d’opposition, de limitation et de portabilité de vos données. Vous pouvez retirer votre consentement à tout moment en contactant directement l’Agence / Le Réseau.
Consultez le site https://cnil.fr/fr pour plus d’informations sur vos droits.
Si vous estimez, après avoir contacté l'Agence / le Réseau, que vos droits « Informatique et Libertés » ne sont pas respectés, vous pouvez adresser une réclamation à la CNIL.
Nous vous informons de l’existence de la liste d'opposition au démarchage téléphonique « Bloctel », sur laquelle vous pouvez vous inscrire ici : https://www.bloctel.gouv.fr
Dans le cadre de la protection des Données personnelles, nous vous invitons à ne pas inscrire de Données sensibles dans le champ de saisie libre.
Ce site est protégé par reCAPTCHA, les Politiques de Confidentialité et les Conditions d'Utilisation de Google s'appliquent.
GSM GERANTE AGNES MALECKI 0670485996